Rustico in vendita

Paliano, Via Piano dei Colli
€ 69.000
3 locali 3 locali
100 Mq 100 Mq

Rustico in vendita

Paliano, Via Piano dei Colli

Descrizione annuncio

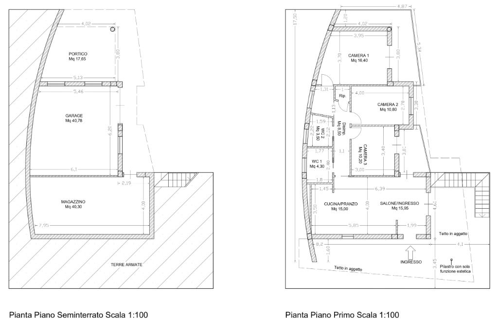
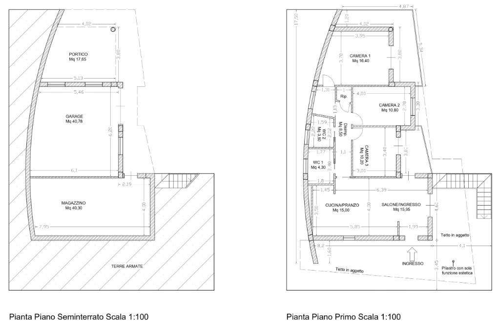
Paliano in via Piano dei Colli per chi è alla ricerca di evadere dal caos cittadino in un contesto residenziale e poco distante dal centro del paese proponiamo in vendita appezzamento di terreno collinare in parte edificabile della superficie di 4750 metri quadrati con annessi due fabbricati residenziali della superficie complessiva di 100 mq ca.

Inoltre la posizione è dominante ed assolata con ampia veduta panoramica dove godersi il paesaggio circostante.

La proprietà è già dotata di allaccio alla rete idrica e servita nelle vicinanze dalla rete elettrica, fognaria e del gas metano.

Nella vendita è compreso anche un progetto di demolizione e ricostruzione con adempimenti burocratici assolti per una villa unifamiliare su unico livello con sottostanti locali garage e magazzino.

Se interessati ad ulteriori informazioni e/o ad un appuntamento per visionare la proprietà potete contattarci in agenzia.

Mostra tutto

Nelle vicinanze

Trasporto pubblico Trasporto pubblico
Paliano - Contrada Colle San Quirico
Paliano - Contrada Colle San Quirico
2,9 Km
Paliano - Stazione
Paliano - Stazione
3,0 Km
Supermercati Supermercati
Sisa Supermercati
440 m
Conad
870 m
Decò
960 m
Bar Bar
7000 caffè
3,0 Km
Ristoranti Ristoranti
Fattoria Celletti
1,7 Km
Mostra tutto

Caratteristiche

Rif.:
61153232
Piano:
Su più livelli di 2
Totale piani:
2
Arredamento:
Assente
Condizionamento:
Assente
Ascensore:
No
Mostra tutto
Prezzo Prezzo
€ 69.000
Rata mutuo Rata mutuo
€ 325 / mese
Spese annue Spese annue
€ 0
Proponi il tuo prezzoProponi il tuo prezzo

Classe Energetica

G
G
G
G
G
G
G
G
G
EP globale non rinnovabile:
711.76 kW h/m² anno
EP globale rinnovabile:
3.99 kW h/m² anno
EP invernale del fabbricato:
EP estiva del fabbricato:
Anno di costruzione:
1940
Riscaldamento:
Assente

Ti interessa visionare l'immobile?

Fissa un appuntamento  Fissa un appuntamento

Richiedi informazioni

Clicca su Leggi per aprire l'informativa
* Questi campi sono obbligatori

Calcola il tuo mutuo

Semplice e senza impegno
Anticipo

( % )
Mutuo

( % )

pochi semplici passi

inserisci i tuoi dati
Questionario completato
Grazie per aver richiesto un appuntamento senza impegno con un nostro Consulente del Credito e Assicurativo.

Hai inserito correttamente tutti i dati necessari e a breve riceverai una e-mail con un link da convalidare per inviare i tuoi dati.
Affiliato
Paliano Mediazioni Srl
Via Cesare Battisti, 4 03018 Paliano (FR)

Il nostro staff


  • Mauro Fiaschetti
    Affiliato

  • Marinella Ianni
    Collaboratrice
Via Cesare Battisti, 4 03018 Paliano (FR)
Zona: Paliano-Serrone
Mostra su mappa
Orari: Dal lunedì al venerdì dalle 09.00 alle 13.00 e dalle 15.30 alle 20.00. Sabato dalle 09.00 alle 13.00 e dalle 15.30 alle 19.00. Domenica e festivi chiuso.
Affiliato
Paliano Mediazioni Srl
Via Cesare Battisti, 4 03018 Paliano (FR)

2025 Tecnocasa Franchising S.p.A. - P. IVA 08365160152 - Via Monte Bianco 60/A 20089 Rozzano (MI). Ogni agenzia ha un proprio titolare ed è autonoma. Privacy policy | Policy utilizzo | Cookie policy