Bilocale in vendita

Serrone, Via Giosuè Carducci
€ 25.000
2 locali 2 locali
50 Mq 50 Mq
1 bagno 1 bagno

Bilocale in vendita

Serrone, Via Giosuè Carducci

Descrizione annuncio

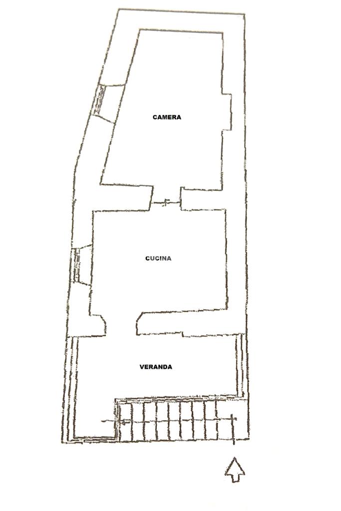
Agenzia leader nel settore immobiliare propone in vendita adiacente al centro storico di Serrone e al parcheggio pubblico comodo appartamento su 2 livelli collegati tramite una scala esterna in muratura ed internamente costituito da cucina con camino, camera e veranda al piano primo e da locale deposito, bagno e cortile al piano terra.

L'immobile è già dotato di acqua diretta, luce ed allaccio in fogna comunale, mentre non è presente l'impianto di riscaldamento.

Se interessati ad ulteriori informazioni e/o ad un appuntamento per visionare l'immobile potete contattarci in agenzia.

Mostra tutto

Nelle vicinanze

Trasporto pubblico Trasporto pubblico
Serrone - via Forese inc. via Velobra
Serrone - via Forese inc. via Velobra
800 m
Fiuggina, Km 45.700
Fiuggina, Km 45.700
840 m
Mostra tutto

Caratteristiche

Rif.:
61158176
Piano:
Su più livelli di 2
Totale piani:
2
Camere da letto:
1
Arredamento:
Parziale
Condizionamento:
Assente
Mostra tutto
Prezzo Prezzo
€ 25.000
Rata mutuo Rata mutuo
€ 117 / mese
Spese annue Spese annue
€ 0
Proponi il tuo prezzoProponi il tuo prezzo

Classe Energetica

G
G
G
G
G
G
G
G
G
EP globale non rinnovabile:
816.90 kW h/m² anno
EP globale rinnovabile:
0.00 kW h/m² anno
EP invernale del fabbricato:
EP estiva del fabbricato:
Anno di costruzione:
1940
Riscaldamento:
Assente

Ti interessa visionare l'immobile?

Fissa un appuntamento  Fissa un appuntamento

Richiedi informazioni

Clicca su Leggi per aprire l'informativa
* Questi campi sono obbligatori

Calcola il tuo mutuo

Semplice e senza impegno
Anticipo

( % )
Mutuo

( % )

pochi semplici passi

inserisci i tuoi dati
Questionario completato
Grazie per aver richiesto un appuntamento senza impegno con un nostro Consulente del Credito e Assicurativo.

Hai inserito correttamente tutti i dati necessari e a breve riceverai una e-mail con un link da convalidare per inviare i tuoi dati.
Affiliato
Paliano Mediazioni Srl
Via Cesare Battisti, 4 03018 Paliano (FR)

Il nostro staff


  • Mauro Fiaschetti
    Affiliato

  • Marinella Ianni
    Collaboratrice
Via Cesare Battisti, 4 03018 Paliano (FR)
Zona: Paliano-Serrone
Mostra su mappa
Orari: Dal lunedì al venerdì dalle 09.00 alle 13.00 e dalle 15.30 alle 20.00. Sabato dalle 09.00 alle 13.00 e dalle 15.30 alle 19.00. Domenica e festivi chiuso.
Affiliato
Paliano Mediazioni Srl
Via Cesare Battisti, 4 03018 Paliano (FR)

2026 Tecnocasa Franchising S.p.A. - P. IVA 08365160152 - Via Monte Bianco 60/A 20089 Rozzano (MI). Ogni agenzia ha un proprio titolare ed è autonoma. Privacy policy | Policy utilizzo | Cookie policy