Porzione di bifamiliare in vendita

Serrone, Via del Fontanile - Monte Scalambra
€ 37.000
4 locali 4 locali
90 Mq 90 Mq
2 bagni 2 bagni

Porzione di bifamiliare in vendita

Serrone, Via del Fontanile - Monte Scalambra

Descrizione annuncio

Agenzia leader nel settore immobiliare propone in vendita a Serrone in località Monte Scalambra a circa 70 km da Roma per gli amanti della natura e della tranquillità in un contesto con ampia venduta panoramica caratteristica villa in bifamiliare con entrata autonoma e terreno privato di 500 mq ca.

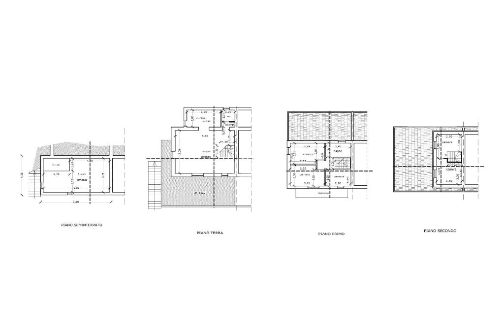
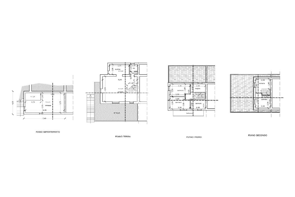
L'abitazione è disposta su 2 piani comunicanti tramite una scala interna:

Il piano terra è costituito da una sala da pranzo con camino, cucina, bagno di servizio e ampio terrazzo.

Mentre il piano primo è costituito da 3 camere, bagno con doccia e balcone.

Incluso nei piani abitativi sono presenti un ulteriore vano al piano secondo adibito a camera ed un piano seminterrato adibito a locale di servizio.

L'immobile è allacciato alla rete elettrica e non è dotato di riscaldamento, mentre per lo smaltimento delle acque reflue è presente una fossa biologica, inoltre viene trasferito in gran parte ammobiliato.

Nella zona non vi è acqua diretta, ma viene alimentata da una cisterna idrica con riciclo dell'acqua piovana o per mezzo di autobotte.

Se interessati ad ulteriori informazioni e/o ad un appuntamento per visionare l'immobile potete contattarci in agenzia.

Mostra tutto

Nelle vicinanze

Trasporto pubblico Trasporto pubblico
San Quirico - prov.le per Roiate
San Quirico - prov.le per Roiate
1,1 Km
Serrone - via Forese inc. via Fontana
Serrone - via Forese inc. via Fontana
1,3 Km
Bar Bar
Bar
2,7 Km
Mostra tutto

Caratteristiche

Rif.:
61081623
Piano:
Su più livelli di 4
Totale piani:
4
Balconi:
1
Terrazzi:
1
Camere da letto:
3
Mostra tutto
Prezzo Prezzo
€ 37.000
Rata mutuo Rata mutuo
€ 174 / mese
Spese annue Spese annue
€ 100
Proponi il tuo prezzoProponi il tuo prezzo
Immobile valutato con T·Valuta

Classe Energetica

G
G
G
G
G
G
G
G
G
EP globale non rinnovabile:
0.00 kW h/m² anno
EP globale rinnovabile:
0.00 kW h/m² anno
EP invernale del fabbricato:
EP estiva del fabbricato:
Anno di costruzione:
1982
Riscaldamento:
Assente

Ti interessa visionare l'immobile?

Fissa un appuntamento  Fissa un appuntamento

Richiedi informazioni

Clicca su Leggi per aprire l'informativa
* Questi campi sono obbligatori

Calcola il tuo mutuo

Semplice e senza impegno
Anticipo

( % )
Mutuo

( % )

pochi semplici passi

inserisci i tuoi dati
Questionario completato
Grazie per aver richiesto un appuntamento senza impegno con un nostro Consulente del Credito e Assicurativo.

Hai inserito correttamente tutti i dati necessari e a breve riceverai una e-mail con un link da convalidare per inviare i tuoi dati.
Affiliato
Paliano Mediazioni Srl
Via Cesare Battisti, 4 03018 Paliano (FR)

Il nostro staff


  • Mauro Fiaschetti
    Affiliato

  • Marinella Ianni
    Collaboratrice
Via Cesare Battisti, 4 03018 Paliano (FR)
Zona: Paliano-Serrone
Mostra su mappa
Orari: Dal lunedì al venerdì dalle 09.00 alle 13.00 e dalle 15.30 alle 20.00. Sabato dalle 09.00 alle 13.00 e dalle 15.30 alle 19.00. Domenica e festivi chiuso.
Affiliato
Paliano Mediazioni Srl
Via Cesare Battisti, 4 03018 Paliano (FR)

2025 Tecnocasa Franchising S.p.A. - P. IVA 08365160152 - Via Monte Bianco 60/A 20089 Rozzano (MI). Ogni agenzia ha un proprio titolare ed è autonoma. Privacy policy | Policy utilizzo | Cookie policy